首页
公司简介
产品中心
桥架
母线槽
开关柜
新闻中心
行业动态
技术支持
企业资质
公司资质
认证证书
用户业绩
联系我们
0511-88410656
当前位置:
网站首页
>
产品中心
>
桥架
>
TPC附件
桥架
母线槽
开关柜
产品中心
桥架
XQJ钢制梯级式桥架
XQJ钢制托盘式桥架
XQJ钢制槽式桥架
XQJ-Y钢制圆弧式桥架
XQJ-TJ.DJ大跨距桥架
XQJ-LQJ铝合金桥架
WBJ-F/C无机不燃桥架
BHQ玻璃钢桥架
XQJ-ZH组合式配线桥架
XQJ-SJ竖井
XQJ-ZJ安装支架
TPC附件
C型钢
母线槽
开关柜
联系方式
地址:江苏省镇江新区大路镇兴港路886-6号
电话:+86 0511-88410656
邮箱:liyi@cn-chunwang.com
传真:+86 0511-88400518
产品中心
FJ-02 吊夹
FJ-01 吊架
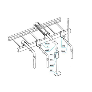
引下装置安装示意图
GDJ固定支架
DGF吊板
GTF管接头
KGZ开关底座
GZ管座
GG 管件
GH 管接头
FZ-05A 垂直凸弯通护罩
FZ-05B 垂直凹弯通护罩
共
46
条记录 页次:
3
/4 每页:
12
条记录
9
[
1
][
2
]
3
[
4
]
: